Kao osnovna komponenta željezničke infrastrukture, GB teške šine imaju specifikacije koje direktno utječu na nosivost i sigurnost sustava zapisa. Prema GB standardima, tri najčešće korištene glavne specifikacije trenutno su 60kg / m, 50kg / m, a 75kg / m, koje su prilagođene željezničkim scenarijima s različitim potrebama za prijevoz.
I.60kg / m Teška šina:Glavna vrsta šine za velike brzine

GNE šina proizvodi 60 kg / m teške šine pomoću U75V mikroalloinog čelika, s poboljšanom otpornošću na habanje putem jačanja elemenata vanadijuma. Sadrži visinu željeznice od 176 mm, širine baze 150 mm, širina glave od 73 mm, debljina web stranice od 16,5 mm, te teoretsku težinu od 60,64kg / m. Njegova zatezna čvrstoća veća je od ili jednaka 980MPA, a jačina prinosa je veća od ili jednaka 680MPA, što omogućava da izdrži opterećenje od brzine visokog brzina pri brzinama iznad 350 km / h.
GNE šina može pružiti fiksne dužine 25m ili 100m, a mogu prilagoditi i dužinu šine prema potrebama kupca.
II.50kg / m teška željeznica: Ekonomski i praktični izbor za više scenarija

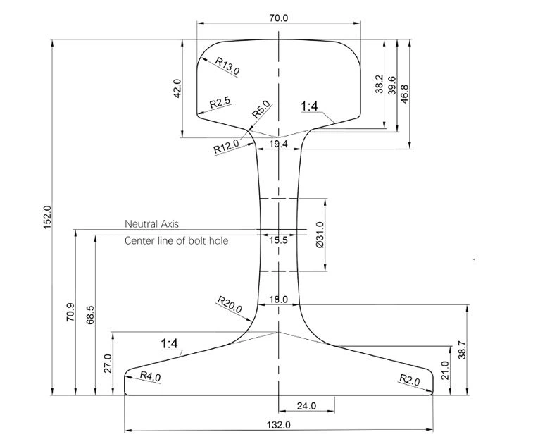
Teška šina od 50 kg / m zasnovana je na ugljičnom čeliku od U71MN, sa šinom visine od 152 mm, širine od 132 mm, širine glave od 70 mm, debljine 15,5 mm, te teorijska težina 51.514kg / m. Sa zatezna čvrstoća veća od ili jednaka 880MPA, kombinira ekonomiju i pouzdanost, a široko se koristi u lokalnim željeznicama, industrijskim i rudarnim namjenskim linijama i linijama stanice. Na primjer, daqin željeznička teška teretna linija za teške vune postigla je vijek trajanja od preko 20 godina za teške šine od 50 kg / m ispod osovinskog opterećenja od 25 tona optimizacijom sistema za zatvaranje.
GNE Rail podržava standardne duljine od 12,5m / 25m, a također pruža i nizPričvršćivači šinapoputElastični isječci, osnovne ploče, šiljke, vijci i orasi.
III.75kg / m Teška šina:Super prevoznik za prevoz teške vuče

75kg / m Teška željeznica koristi u78CRV-a od legure visokog ugljika, sa visinom šine od 202 mm, širine od 150 mm, širina glave od 75 mm, debljine 20 mm i teorijsku težinu od 74,41kg / m. Njegova zatezna snaga je veća od ili jednaka 1080MPA. Tijekom proizvodnje 75 kg / m teške šine, GNEE šina prihvaća procese jačanja od legure hrom-vanadij i utapanje glave, što omogućava šine šine da izdrže teške vlakove sa osovinom iznad 30 tona.
GNee RailPruža puni raspon proizvoda GB teških željezničkih proizvoda, pokrivajući 60kg / m (U75V), 50kg / m (U78MN) i 75kg / m (U78CRV), strogo implementiranje GB standarda. Pored GB teških šina, GNee Rail nudi iLake šine i kranovi šine, uključujući različite specifikacije kao što suQu70, QU80, QU100, i QU120.
| Klasifikacija | Visina (mm) | Glava (mm) | Dno (mm) | Debela (mm) | Težina (kg / m) | |
| Lagana šina | 8 kg / m | 65 | 25 | 54 | 7 | 8.42 |
| 9 kg / m | 63.5 | 32.1 | 63.5 | 5.9 | 8.94 | |
| 12 kg / m | 69.85 | 38.1 | 69.85 | 7.54 | 12.2 | |
| 15 kg / m | 79.37 | 42.86 | 79.37 | 8.33 | 15.2 | |
| 18 kg / m | 80 | 40 | 80 | 10 | 18.06 | |
| 22 kg / m | 93.66 | 50.8 | 93.66 | 10.72 | 22.3 | |
| 24 kg / m | 107 | 51 | 90 | 10.9 | 24.46 | |
| 30 kg / m | 107.95 | 60.33 | 107.95 | 12.3 | 30.1 | |
| Teška šina | 38 kg / m | 134 | 68 | 114 | 13 | 38.733 |
| 43 kg / m | 140 | 70 | 114 | 14.5 | 44.653 | |
| 45 kg / m | 145 | 67 | 126 | 14.5 | 45.546 | |
| 50 kg / m | 152 | 70 | 132 | 15.5 | 51.514 | |
| 60 kg / m | 176 | 73 | 150 | 16.5 | 60.64 | |
| Land | Qu 70 | 120 | 70 | 120 | 28 | 52.8 |
| Qu 80 | 130 | 80 | 130 | 32 | 63.69 | |
| Qu 100 | 150 | 100 | 150 | 38 | 88.96 | |
| Qu 120 | 170 | 120 | 170 | 44 | 118.1 | |

