Rails type R65, for general purpose main tracks, 25 meters T1.
Р51685-2000, Р51685-2013,
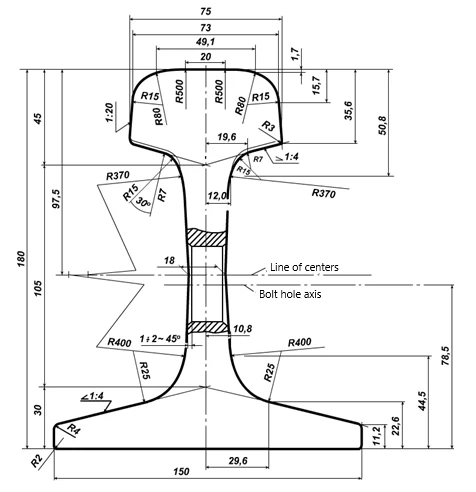
Rails type R65

R-65 rails

The R-65 rails are intended for laying wide railway tracks and making turnout switch. R-65 rails are manufactured according to the following regulatory documents: GOST 51045-97, GOST 51685-2013, TU 0921-231-01124322-2014, TU 14-2R-475-2013. With the following steel grades: K76F, E76F, K90AF, DT350. R-65 rails are divided into categories: DT-differentiated, T1- thermostrengthened.
|
Weight 1 meter |
64,88 kg |
|
25000х150х180 mm |
|
|
GOST 51685-2000 |
|
|
Drawing of rail R-65 T1 |
GOST 51685-2000 |
|
Rail material R-65 T1 |
|
|
Rail type R-65 |
Т1 |
|
Hardness of the rail neck R-65 according to GOST |
up to 388 HB (Brinnell) and 41 HRC (Rockwell) |
|
Thickness of the rail neck R-65 according to GOST |
18 mm. |
Reliable Rails type R65 Supplier

