Uvod proizvoda
22kg GB lagana šina između mnogih materijala sa značajnim prednostima svjetlosne težine i niske troškove . ne može se jednostavno prevoziti i negativno smanjujući radna i materijalna troškova u početnom izgradnji, ali ima i dobru otpornost na habanje i otpornost na deformaciju kroz posebne procese kotrljanja i toplinskih obrada;
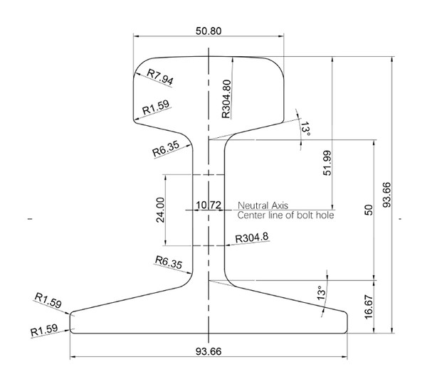
Specifikacije proizvoda

Specifikacije lakih šina P22:
Visina šina 93,66 mm
Širina glave 50.8mm
Debljina struka 10,72 mm
Fiksna dužina: općenito 5m, 5 mil. 5m, 6m, 6,5m, 7m, 7,5m, 8m, 8,5m, 9m, 9,5m, 10m, 10,5m, 11m, 11,5m, 12m i mnoge druge opcije.
Primjena proizvoda
Scenariji aplikacije za laganu željeznicu od 22kg
Unutar industrijskih postrojenja:U lakim industrijskim postrojenjima, P22 lagana šina može se koristiti za instaliranje staza za pokretanje malih dizalica ili baterije za transport i prevoz materijala unutar postrojenja .
Mine i šumska područja:22kg lagana šina može se postaviti u podzemnim tunelima mina ili na privremenim transportnim putevima na terenu za transportne rude, materijale itd. .; U šumskim površinama može se koristiti za izgradnju jednostavnih guma za promet drva za olakšavanje prevoza i rukovanja drvetom .
Građevinska mjesta:Kao privremene staze na gradilištima, poput gradilišta, koristi se za transport građevinskih materijala, alata i drugih materijala za olakšavanje raspodjele materijala tokom procesa izgradnje .

GNee Rail je kompanija koja se fokusira na međunarodnu trgovinu čeličnim proizvodima . Ima iskustva u GB-u, a njegovi proizvodi se izvoze na jugoistočnu Afriku i Latinsku Ameriku, koji pokrivaju različite modele i specifikacije, te mogu udovoljiti tehničkim zahtjevima različitih željezničkih projekata.




Popularni tagovi: 22kg GB Light šina, Kina 22kg GB lagani željeznički proizvođači, dobavljači, tvornica





